Home » Attualità » Pescara, il Pd su delibera Tre Gemme

Pescara, il Pd su delibera Tre Gemme

da Redazione Abruzzonews

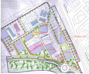
Piano di valorizzazione urbanistica LungofiumePESCARA -I Componenti della  Comm. Urbanistica  del Comune di Pescara Enzo Del Vecchio ,Camillo D’Angelo e  Florio Corneli in un comunicato  di ieri rendono noto che la  delibera  relativa al Progetto Tre Gemme è stata ritirata , ma  che si intravede altresì il profilarsi di un nuovo atto sotto mentite spoglie.Recita così la nota dei consiglieri comunali del Pd:

La comunicazione che la delibera riguardante il progetto della società TRE GEMME verrà ritirata è stata data dall’assessore Antonelli nel corso della Conferenza dei Capigruppo che si è tenuta questa mattina.
Quattro scarne parole,dopo l’affondo sui giornali di oggi dello stesso Assessore nei confronti del consigliere Mambella, che non contribuiscono a fare chiarezza sull’enorme e pericoloso conflitto d’interessi nel quale è incappato il consigliere Mambella che si è ritrovato completamente isolato sia dalla sua stessa maggioranza sia dal suo gruppo politico, Pescara Futura, notoriamente prodigo in comunicati stampa del suo indiscusso leader, Calo Masci, a difesa anche dell’indifendibile.
Evidentemente la situazione deve essere talmente grave che anche la difesa d’ufficio è venuta meno e, come straordinariamente diceva tale Ennio Flaiano “La situazione è grave ma non è seria.”
Provando per una volta a smentire Flaiano sulla serietà della situazione, non sembra, però, siano venuti meno i chiarimenti da parte del Segretario Generale sull’operato sin qui tenuto dal consigliere Mambella in Consiglio comunale anche alla luce delle precisazioni fatte dall’Assessore Antonelli riguardo la funzione dello stesso Segretario quale “responsabile delle attività anti-corruzione”. Ciò nonostante e di fronte alla competenza del Consiglio di doversi esprimere al riguardo, non possiamo non cogliere la precisa volontà della maggioranza di riproporre l’atto con l’identica finalità e cioè quella di procedere nella concessione di cambi di destinazione d’uso in assenza di adeguato corrispettivo economico nei confronti del Comune per le plusvalenze che il Comune è chiamato ad autorizzare.Si tratterebbe di un vulnus nella gestione della politica urbanistica con deflagranti ripercussioni su tutto il settore e che paradossalmente la stessa amministrazione ritiene non praticabile laddove l’intervento è pianificato dalla stessa amministrazione e come, peraltro, ha già previsto con il Programma Complesso Lungofiume nel quale ricade anche l’area della società TRE GEMME.Mai come in questa occasione la maggioranza masciana sta dando dimostrazione di essere in completo stato confusionale ed incapace percepire la gravità della situazione.Una situazione che risulta essere di una gravità inaudita e che per senso di responsabilità nei confronti della Città non permetteremo in alcun modo che possa concretizzarsi facendo ricorso a tutte le forme democratiche concesse dallo Statuto e dal Regolamento comunale e rimandando al mittente ogni forma di condizionamento del Consiglio comunale con pretese risarcitorie assurde e prive di alcun riferimento normativo.