Home » Ambiente » Montesilvano sempre più sostenibile

Montesilvano sempre più sostenibile

da Redazione Abruzzonews

Si amplia a nord e a sud di Montesilvano la raccolta differenziata porta a porta

PP1MONTESILVANO (PE) – Prosegue speditamente il percorso di ampliamento del sistema della raccolta porta a porta a Montesilvano.

Dopo la prima fase che ha coinvolto la zona collinare di Montesilvano, connotata da risultati eccellenti che hanno consentito di raggiungere l’85% nella differenziazione dei rifiuti, tocca ora a due nuove zone della città, a nord e a sud.

Da martedì 10 ottobre, gli addetti di Formula Ambiente, distribuiranno i bidoncini per la raccolta differenziata porta a porta e tutte le istruzioni per il corretto conferimento dei rifiuti, nelle “unità immobiliari non amministrate”, ossia le case singole che non hanno un amministratore condominiale dei quartieri Pp1 e al confine con Pescara.

L’operazione, che durerà alcuni giorni, coinvolge le zone all’estremità del territorio comunale per disincentivare anche l’abbandono dei rifiuti nel territorio di Montesilvano da parte dei cittadini dei comuni limitrofi, episodi numerosi riscontratisi nei mesi precedenti.

«Gli eccellenti risultati ottenuti nella fase sperimentale di Montesilvano Colle – dichiara l’assessore all’Igiene Urbana Paolo Cilli – hanno inciso sul dato della differenziazione del rifiuto di tutto il territorio, portando la percentuale dal 19,86% dello scorso gennaio ad oltre il 28%. Questo ci fa ben sperare sui risvolti positivi, in termini di differenziazione, ma anche di decoro urbano, grazie anche alla eliminazione dei cassonetti stradali, che questa ulteriore estensione del progetto a due nuove zone della città, per un totale di altre 2500 utenze, porterà sulla città».

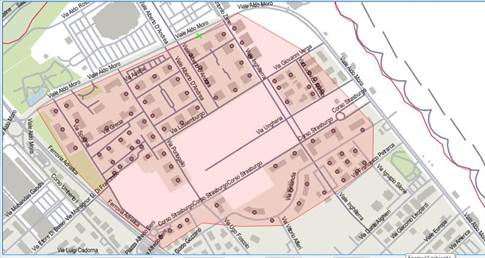
Le vie interessate da questa nuova fase sono: per la PP1 le vie Dante Alighieri, Ariosto, Carducci, Alberto D’Andrea, Carlo Goldoni, Grecia, Lussemburgo, Petrarca, Portogallo, Ignazio Silone, Giovanni Verga, i viali Alberto D’Andrea, Finlandia, Inghilterra, Spagna e corso Strasburgo.

Per la Zona Sud: le vie Basento, Crati, Lavino, Livenza.

Inoltre, sempre nell’ottica dell’ampliamento della raccolta differenziata porta a porta e la relativa diffusione delle informazioni ai cittadini, giovedì 12 alle 15.30 i responsabili di Formula Ambiente incontreranno gli amministratori dei condomini degli immobili ubicati nelle aree interessate dalla nuova raccolta (PP1 e Zona Sud) per informarli delle specificità della raccolta nei condomini da loro amministrati.